
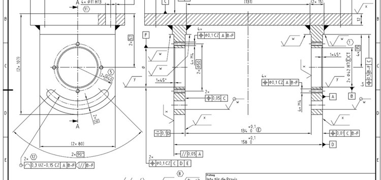
Technische Zeichnung nach der Umstellung (Bild: PAL - Prüfungsaufgaben- und Lehrmittelentwicklungsstelle - IHK Region Stuttgart)
03.06.2019 Umbruch für technische Produktdesigner
Die Digitalisierung hat eine einheitliche technische Sprache, die man beherrschen muss
Seit mehr als zehn Jahren soll die berufliche Bildung in Deutschland – auch im Zuge der Digitalisierungsbestrebungen – verbessert werden. So sind Prüfungen nach den gleichen Vorgaben wie vor 30 bis 40 Jahren nicht mehr zeitgemäß. Ende 2018 wurde deshalb z.B. für Technische Produktdesigner/innen beschlossen, dass die Prüfungen ab Frühjahr 2021 neuen Anforderungen Rechnung tragen – und die Prüfungsänderungen sind gravierend.
Mit der Einführung der ISO 8015 von 2011 [1] und der ISO 286-1 von 2010 [2] hat sich eine wesentliche Änderung in den GPS-Normen [3] vollzogen. Um mitzuhelfen, diese Veränderungen in der internationalen Normung in die zukünftigen Prüfungen für Technische Produktdesigner/innen einfließen zu lassen, unterstütze ich seit April 2017 die Prüfungsaufgaben- und Lehrmittelentwicklungsstelle (PAL) der IHK Stuttgart. Ziel ist es, den Ausbildenden die Informationen dergestalt zu vermitteln, dass sie Konstruktionen so gestalten können, dass diese für Industrie 4.0 einsatzfähig sind. Dabei sollen sie lernen, dass ein Modell ein Baustein ist, um die Automatisierung der Produkte voranzutreiben. Ohne diese würden wir in Deutschland den Anschluss an die internationale Industrie verlieren. Die Digitalisierung ist zwingend notwendig, setzt aber eine tiefgreifende und nachhaltige Veränderung in den Schulen und Betrieben sowie auch Veränderungen in der Lehre und im Lernen voraus.
Wissen und lernen, was man tun muss
In einer vernetzten digitalisierten Welt brauchen wir Regeln und Symbole, die alle verstehen und einhalten. Ansonsten können keine eindeutigen Verträge geschlossen werden. Hierbei ist es wichtig, dass alle, die mit der Ausbildung in diesem Bereich zu tun haben, diese Regeln und Normen verinnerlichen, damit sie diese den Auszubildenden vermitteln können. Für die berufliche Bildung heißt dies, dass Berufsschullehrer, Ausbilder und Prüfer auf diesem Gebiet fit sein müssen. Da viele von diesen Zielpersonen die Bedeutung der Symbole, die Defaultvorgaben und Beschreibungsregeln nicht in ihrer eigenen Ausbildung gelernt haben, bedeutet dies, dass auch sie hier nochmals auf die Schulbank müssen, um sich das Wissen anzueignen, das sie dann weitergeben werden.
Diese internationale Sprache ist eine symboldefinierte Beschreibung von Zeichnungen/Modellen, die in allen Ländern gleich ist. Derzeit gibt es sehr viele verschiedensprachige Textangaben in den Zeichnungen. Mithilfe der GPS-Symbole kann auf diese Texte verzichtet werden. Mit den Regeln, die mathematisch in den internationalen Normen beschrieben sind, beschreibt der Konstrukteur die Vorgaben in seiner Zeichnung bzw. in seinem Modell. Der Messtechniker kann bei exakten Vorgaben diese eindeutig messen und der Werkzeugmacher oder Mechaniker das geforderte Teil nach Vorgaben herstellen. Alle in der Herstellungskette wissen, was von ihnen verlangt wird. Computer können dies für Werkzeugmaschinen oder Koordinatenmessgeräte exakt übertragen. Sie haben Compiler von einem System zum anderen. Teile können wesentlich schneller hergestellt und geprüft werden. Die Kosten werden mit der Zeit sinken. Leider reden viele in Bezug auf Industrie 4.0 nur vom Ausbau des Glasfasernetzes, aber nicht davon, was Industrie 4.0 für jeden einzelnen damit Befassten bedeutet. Es ist auch ein Aufrütteln der Gesellschaft nötig, die sich mit den Innovationen beschäftigen muss, d.h. jeder muss bereit sein, dazuzulernen. Betriebe müssen ihre Mitarbeiter dazu motivieren, sich damit zu beschäftigen und ihnen auch die Möglichkeit bieten, sich weiterzubilden. Wir leben in einer sich schnell wandelnden Welt, deshalb müssen alle ihren Beitrag leisten, unabhängig welchen Alters, ob Auszubildender oder Experte.
Der Wandel muss gestaltet werden
Diese Notwendigkeit der Veränderung wurde bei der PAL – Prüfungsaufgaben- und Lehrmittelentwicklungsstelle – IHK Region Stuttgart erkannt und eine Information für die Praxis herausgebracht, damit jeder den Wandel sehen und für sich und seinen Betrieb entsprechende Maßnahmen treffen kann.
Dieser Wandel wird sich in den nächsten Jahren in Deutschland sehr stark bemerkbar machen. Hier ist es wichtig, zu erkennen, wie sich Unternehmen zukunftsorientiert aufstellen müssen, um nicht den Anschluss zu verlieren. Diese Entwicklung muss sich zudem für jeden Einzelnen lohnen, damit nicht unnötig Zeit, Geld und Arbeit investiert werden. Vorgesetzte müssen erkennen, welche Zeit ihre Mitarbeiter brauchen, um das Erlernte auch umzusetzen. In der Praxis fällt häufig auf, dass viele Vorgesetzte ihren Mitarbeitern nicht die nötige Zeit einräumen, um zu lernen, die neuen Vorgaben sicher und rechtsverbindlich anzuwenden. Hier ist viel Schulungsbedarf nötig. Das fehlende Wissen wird oft erst erworben, wenn die Betriebe „mit dem Rücken zur Wand“ stehen. Wenn erst dann Geld in die Hand genommen wird, kann dies sehr teuer werden.
Ausbilder müssen wieder lernen
Sehr viele Lehrer und Ausbilder haben die neuen Vorgaben nicht gelernt, sodass sie Schwierigkeiten haben, sich die neuen Informationen anzueignen und an die Auszubildenden weiterzugeben. Deshalb empfehlen sich dringend Schulungen. Beim Beuth-Verlag wird man für die Ausbildenden ein Normenübersichtsbuch herausbringen, damit jeder nachschauen kann, wie die Normen weltweit definiert werden und wo das festgelegt und nachzulesen ist. Als Grundlage sollten die internationalen Normen dienen.
Veränderung der Prüfungsinhalte
Früher wurden Zeichnungen so ausgelegt, als wäre alles eine Hülle, die durch Maße definiert ist (Bild 1). Jetzt (Bild 2) sind alle Größenmaße Zweipunktmaße, bei denen die Form der Geometrieelemente noch beschrieben werden muss, weil Geometrieelemente als Zweipunktmaße krumm sein können. Teile, die zu fügen sind, sollten unbedingt mit E im Kreis gekennzeichnet werden. Größenmaße, die keine besondere Bedeutung haben, z.B. Schraubenlöcher mit großen Toleranzen, können als Gauß-Größenmaße definiert werden, wobei auch hier die Zylinderform angegeben werden sollte. Das Gauß-Größenmaß ist nur ein Mittelmaß, kann aber sehr schnell gemessen werden, weil die Punkteanzahl gering sein kann.
Der Produktdesigner sollte die Funktion eindeutig beschreiben und alle anderen unwesentlichen Maße (Abstände, Form, Richtung und Ort) über die Allgemeintoleranzen beschreiben. Hier wird in Zukunft die ISO 22081, [4] die z. Z. noch als DIS veröffentlicht ist, eine große Hilfe sein. Mit der neuen ISO 22081 (jetzt nur ISO/DIS 22081) kann das Profil einer Fläche mit einem eindeutigen Bezugssystem die Geometrien sehr gut beschreiben. Die ISO/DIS 22081 wird die Allgemeintoleranzen ISO 2768-2 [5] ablösen, weil diese immer wieder zu Rechtsstreitigkeiten geführt haben und ihre Handhabung nicht mehr dem Stand der Zeit entspricht. Die ISO 2768-1[6] oder ähnliche Normen werden zukünftig nur für Größenmaße Gültigkeit haben. Durch diese Normen werden Zeichnungen übersichtlicher und Teile können, z.B. mithilfe der Computertomografie, schneller gemessen werden.
Fazit
Wir müssen die Auszubildenden lehren, dass eine Zeichnung bzw. ein Modell ein Vertragsdokument ist, das spezielle Anforderungen enthält. Damit sie dies gut lernen können, müssen wir sie sehr gut ausbilden und schulen. Nur so können wir Industrie 4.0 richtig leben, sicheren Welthandel gewährleisten und Reklamationen reduzieren. Dann sind auch weniger Reisen nötig, weil die Zeichnung bzw. das Modell alles Relevante aussagt. Hierdurch leisten wir auch einen Beitrag zum Umweltschutz. Industrie 4.0 ist ein Meilenstein, der uns in Deutschland bei konsequenter Anwendung technologisch weiterbringen wird. Die neue Prüfung für Produktdesigner/ innen kann nur der Anfang sein. Auch andere Berufsgruppen wie Mechaniker, Werkzeugmacher, aber auch die Hochschulen sollten sich auf die neue Zeit einstellen.
Literatur [1] DIN EN ISO 8015 Geometrische Produktspezifikation (GPS) – Grundlagen – Konzepte, Prinzipien und Regeln
[2] DIN EN ISO 286-1 Geometrische Produktspezifikation (GPS) – ISO – Toleranzsystem für Längenmaße – Teil 1: Grundlagen für Toleranzen, Abmaße und Passungen
[3] DIN EN ISO 14638 Geometrische Produktspezifikation (GPS) - Matrix-Modell [4] ISO/DIS 22081 Geometrical product specifications (GPS) – Geometrical tolerancing – General
Fakten für Konstrukteure
• Nur mit richtigen Zeichnungen nach dem neuesten Standard entsteht Rechtsverbindlichkeit und kann effizient im Team mit Menschen und Maschinen gearbeitet werden
Fakten für Einkäufer
• Eine richtige Zeichnung ist Beschaffungssicherheit, spart Zeit und Geld bei der Beschaffung und schützt vor Reklamationen
Fakten für Qualitätsmanager
• Produktqualität fängt bei der richtigen Konstruktionszeichnung an
Weitere Infos zum Hintergrund des Autors
• Obmann im NA 152-03-02 AA Arbeitsausschuss CEN/ISO Geometrische Produktspezifikation und -prüfung
• Mitglied des ISO Arbeitskreises (GPS – geometrische Produktspezifikation – ISO/TC 213)
• Deutscher Experte in den Ausschüssen AG13; WG2; WG4; WG12; WG14; WG17 und WG18
• Berufen in die Prüfungsaufgaben- und Lehrmittelentwicklungsstelle als GPS Experte (PAL-Stuttgart – Berufsausbildung in Deutschland)
Seminar "Technische Zeichnungen nach aktuellen Normen erstellen – Teil 1"

Bild 1: Zeichnung vor der Umstellung (Bild: PAL – Prüfungsaufgaben- und Lehrmittelentwicklungsstelle – IHK Region Stuttgart)

Bild 2: Zeichnungen nach der Umstellung (Bild: PAL – Prüfungsaufgaben- und Lehrmittelentwicklungsstelle – IHK Region Stuttgart)

